Projets
A propos
Contact
Projets
A propos
Contact
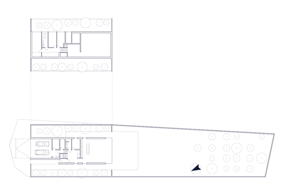
Maison E
Maison sur une parcelle longe et étroite.
Statut :
Étude
Localisation :
Orzesze, Pologne
Catégorie :
Habitat
Programme :
Maison individuelle
MOA :
Privé
Surface :
150 m²
Coût travaux :
NC
Équipe :
BD'AA