Laboratoires de géochimie
Un bâtiment scientifique qui conjugue performance technique, stratégie bioclimatique et identité architecturale. Le projet répond aux standards les plus exigeants en matière de salles blanches, tout en s'inscrivant dans une démarche environnementale responsable et une vision prospective du campus.
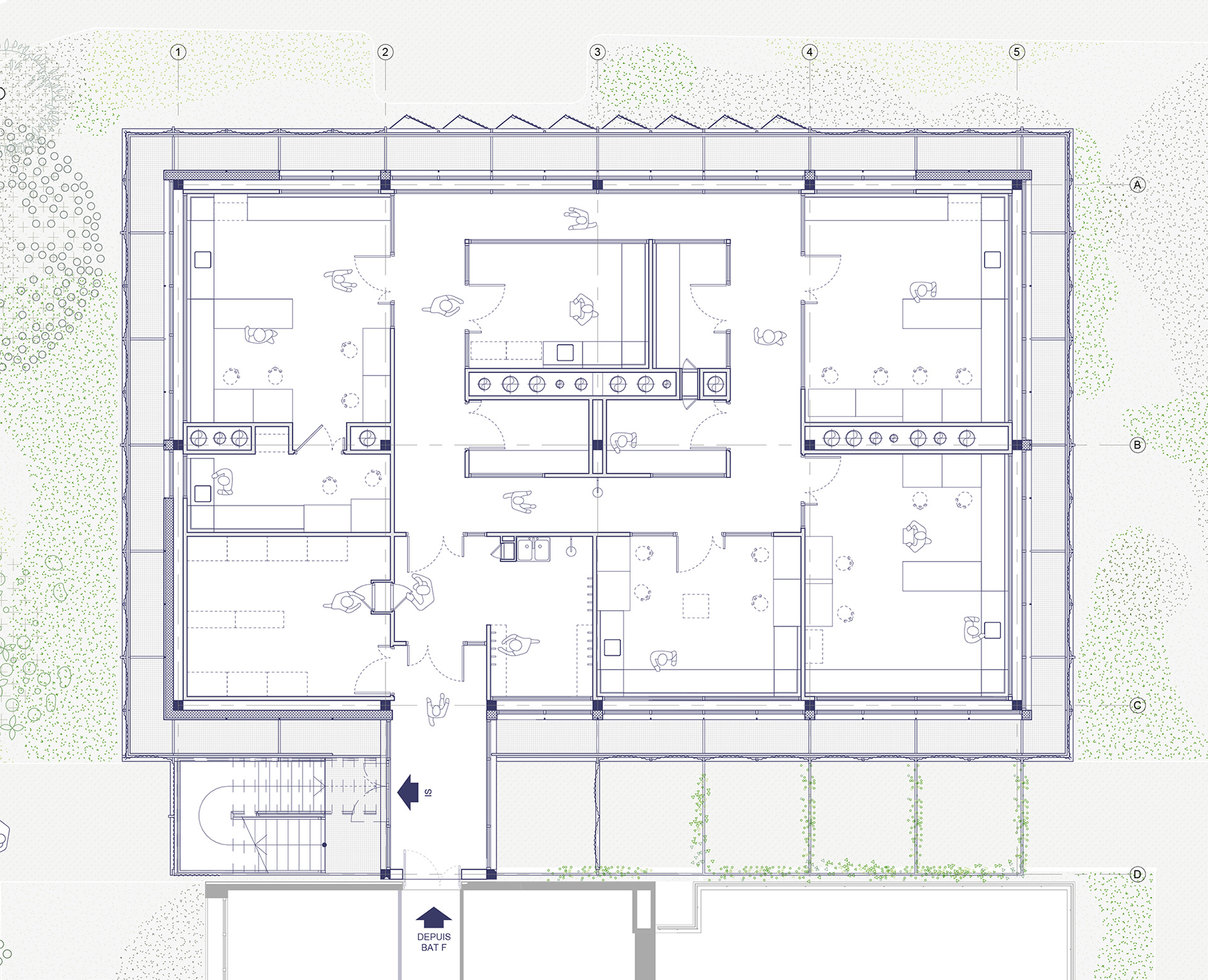
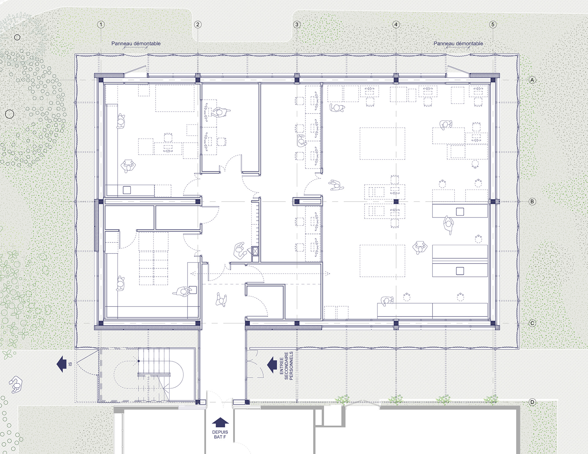
Malgré les contraintes inhérentes aux salles blanches, la conception privilégie les dispositifs passifs sur les systèmes actifs, limitant ainsi l'empreinte énergétique du bâtiment.
Toutes les salles bénéficient d'une double orientation, offrant une flexibilité lumineuse adaptée aux différentes périodes de la journée. Les salles d'angle s'ouvrent quant à elles sur l'espace boisé environnant, ménageant des échappées visuelles.
 
Projet réalisé en tant que cheffe de projet libérale chez IDP Architectes
​Statut : Concours
Localisation : Toulouse, France
Catégorie : Enseignement, recherche
Programme : Salles blanches de géochimie
MOA : Université de Toulouse
Surface : 660 m²
Coût travaux : 2 230 000 € HT
Équipe : IDP Architectes (mandataire) / BETEM (bureau d'études TCE) / ATMOSPHERES (bureau d'études coût global) / EMACOUSTIC (bureau d'études acoustique)
 
Perspectives : Lotoarchilab